Casa prefabricada de hormigón. Modelo Zeus. 1047

Solo se podrá acceder a los planos una vez se haya iniciado sesión con tu cuenta, en caso de no tener cuenta puedes solicitarla aquí

Información del modelo

El Modelo Zeus es una vivienda moderna y versátil que combina una base funcional con una ampliación de dos dormitorios adicionales y una suite principal, ideal para familias que buscan amplitud y privacidad.

Su distribución inteligente permite una clara separación entre las zonas sociales y privadas, destacando una cocina central abierta, múltiples espacios de trabajo o estudio, y un salón con excelente luminosidad. El diseño lineal favorece la ventilación cruzada y la entrada de luz natural a lo largo de toda la casa.

Precio del modelo

Precios aproximados:

Acabado T1 (Estructura básica): Desde 40.000€ 

Acabado T4 (Llave en mano): Desde 100.000€

Para ver los precios exactos de este modelo es necesario iniciar sesión con tu cuenta.

Si ya tienes cuenta, inicia sesión para acceder.

Si aún no estás registrado, puedes solicitar tu cuenta en menos de 1 minuto aquí.

Al registrarte podrás:

  • Ver precios completos y personalizados.

  • Acceder a planos, renders y fichas técnicas.

  • Recibir novedades y descuentos exclusivos.

¿Necesitas mas información? Contacta con nosotros

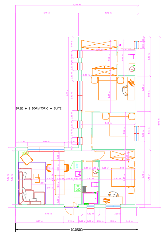
Medidas del modelo

Superficie total construida: 94.61 m²

  • Salón – comedor: 20.5 m²

    • Cocina: 4.5 m²

    • Lavandería / técnica: 1.6 m²

    • Dormitorio principal (suite): 8.5 m²

    • Baño suite: 3.8 m²

    • Dormitorio 2: 13.5 m²

    • Dormitorio 3: 11.5 m²

    • Baño común: 3.2 m²

    • Pasillos y distribución: 7.0 m²

*Medidas orientativas no vinculantes*

¿Quieres descubrir que tipos de acabados tenemos para nuestras viviendas?

Visita nuestra sección de acabados para escoger el que mas se ajuste a ti, desde la estructura básica hasta llave en mano.

Login de usuario

Rellena los campos para poder iniciar sesión con tu cuenta.

TU SOLICITUD HA SIDO ENVIADA

Nos pondremos en contacto con usted via e-mail con el correo que nos ha facilitado para entregarle su usuario y contraseña.