Casa prefabricada de hormigón. Modelo Pais Vasco. 1030

Solo se podrá acceder a los planos una vez se haya iniciado sesión con tu cuenta, en caso de no tener cuenta puedes solicitarla aquí

Solo se podrá acceder a los planos una vez se haya iniciado sesión con tu cuenta, en caso de no tener cuenta puedes solicitarla aquí

Solo se podrá acceder a los planos una vez se haya iniciado sesión con tu cuenta, en caso de no tener cuenta puedes solicitarla aquí

Información del modelo

El Modelo Pais Vasco es una residencia de tres niveles que redefine el concepto de funcionalidad y confort en una vivienda moderna. Con una estructura bien organizada y espacios generosos, esta propuesta está diseñada para brindar amplitud, privacidad y áreas de convivencia perfectamente equilibradas. Su distribución racional y su diseño arquitectónico permiten el máximo aprovechamiento del terreno, integrando zonas sociales, privadas y de servicio de manera armónica.

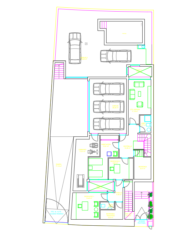
Planta Sótano (Planta -1)

Este nivel está concebido para cubrir funciones de servicio, descanso y almacenamiento, con un enfoque claro en la eficiencia del espacio. Cuenta con un estacionamiento cubierto con capacidad para tres vehículos, además de un estacionamiento exterior para dos autos adicionales, facilitando la movilidad diaria de familias numerosas o visitas frecuentes.

En el interior, se dispone un estudio/gimnasio, dos recámaras secundarias con clósets, y un baño completo compartido. También se incluye una recámara de servicio con baño privado, ideal para personal doméstico o para uso flexible. Una sala de estar complementa esta planta, generando un espacio privado y funcional para el descanso o actividades familiares más reservadas. Además, se ubica aquí el cuarto de lavado y patio de servicio.

Planta Baja (Planta 0)

La planta principal es el corazón social de la vivienda. Al ingresar, se accede a un vestíbulo con escaleras de conexión vertical y medio baño de visitas. La cocina, de generosas dimensiones y diseño en “L” con isla central, se abre hacia un porche lateral cubierto, ideal para desayunos al aire libre.

La sala y comedor se integran en un espacio amplio y fluido que conecta directamente con un porche posterior techado, ampliando el área social hacia el exterior y facilitando actividades de convivencia en un entorno natural. Esta planta también cuenta con una bodega bajo escalera y espacios de circulación bien delimitados.

Planta Alta (Planta 1)

Destinada al descanso privado, esta planta incluye cuatro recámaras perfectamente distribuidas. La recámara principal se convierte en un refugio personal con baño completo y clóset vestidor. Las tres recámaras secundarias cuentan también con clósets propios; dos de ellas comparten un baño completo, mientras que una tercera recámara posee baño privado.

Además, este nivel cuenta con una sala de TV familiar, ideal para el entretenimiento o el estudio, y una área de lavado adicional, lo que aporta mayor funcionalidad y comodidad en el día a día.

 

El Modelo Pais Vasco es una solución habitacional integral que combina diseño inteligente, amplitud y confort. Sus tres niveles están estratégicamente organizados para cubrir todas las necesidades de una familia contemporánea, integrando áreas sociales abiertas, zonas privadas confortables y servicios funcionales sin comprometer la estética ni la calidad del espacio. Ideal para quienes buscan un hogar completo y versátil, preparado para adaptarse a los distintos momentos de la vida familiar.

Precio del modelo

Precios aproximados:

Acabado T1 (Estructura básica): Desde 280.000€ 

Acabado T4 (Llave en mano): Desde 720.000€

Para ver los precios exactos de este modelo es necesario iniciar sesión con tu cuenta.

Si ya tienes cuenta, inicia sesión para acceder.

Si aún no estás registrado, puedes solicitar tu cuenta en menos de 1 minuto aquí.

Al registrarte podrás:

  • Ver precios completos y personalizados.

  • Acceder a planos, renders y fichas técnicas.

  • Recibir novedades y descuentos exclusivos.

¿Necesitas mas información? Contacta con nosotros

Medidas del modelo

Totales generales
Superficie útil total: 274,20 m²
Superficie construida total: 305,63 m²

Planta baja
Superficie útil: 99,14 m²
Superficie construida: 115,61 m²

Hall (recibidor): 9,03 m²
Dormitorio 1: 9,18 m²
Aseo: 1,71 m²
Cocina: 11,03 m²
Salón – Comedor: 30,49 m²
Baño 1: 3,82 m²

Porche de entrada: 2,98 m² (solo construida)
Porche delantero: 14,82 m² (solo construida)
Porche trasero: 13,38 m² (solo construida)
Porche jardín: 2,70 m² (solo construida)

Planta alta
Superficie útil: 77,86 m²
Superficie construida: 80,57 m²

Dormitorio 2: 14,00 m²
Dormitorio 3: 11,03 m²
Dormitorio 4: 12,83 m²
Dormitorio 5: 12,47 m²
Distribuidor: 6,11 m²
Baño 1 (planta alta): 3,20 m²
Baño 2 (planta alta): 3,20 m²
Baño 3 (planta alta): 5,33 m²
Escalera: 6,20 m²
Terraza: 3,49 m²

Planta sótano
Superficie útil: 97,20 m²
Superficie construida: 109,45 m²

Gimnasio / Trastero: 10,80 m²
Dormitorio 6: 9,27 m²
Baño: 2,85 m²
Sala polivalente: 25,61 m²
Garaje (3 coches): 36,15 m²
Instalaciones / Lavadero: 8,52 m²
Distribuidor / Escalera: 4,00 m²

*Medidas orientativas no vinculantes*

¿Quieres descubrir que tipos de acabados tenemos para nuestras viviendas?

Visita nuestra sección de acabados para escoger el que mas se ajuste a ti, desde la estructura básica hasta llave en mano.

Login de usuario

Rellena los campos para poder iniciar sesión con tu cuenta.

TU SOLICITUD HA SIDO ENVIADA

Nos pondremos en contacto con usted via e-mail con el correo que nos ha facilitado para entregarle su usuario y contraseña.