
Casa modular en la sierra de Madrid
Casa modular en la sierra de Madrid Modelo Madarcos Chalet independiente en la Sierra de Madrid Este proyecto se sitúa en un entorno especialmente sensible:
Modelo Madarcos
Este proyecto se sitúa en un entorno especialmente sensible: la Sierra de Madrid. Un chalet independiente que, más allá de su diseño y distribución, debía responder a una serie de condicionantes técnicos y estéticos propios de una zona protegida.
El resultado es una vivienda modular que se integra de forma natural en el paisaje, respetando la arquitectura tradicional de la sierra y demostrando que la construcción industrializada también es viable en contextos altamente regulados.
Levantar una vivienda en la Sierra de Madrid implica cumplir una serie de criterios muy concretos que afectan directamente al diseño exterior, los materiales y la volumetría del edificio.
Para cumplir con las exigencias de construcción en este entorno, los muros exteriores deben acabarse en tonos ocres o terrosos, o bien revestirse con piedra natural, y las cubiertas han de ser inclinadas y ejecutadas con teja cerámica o pizarra.
Además de estos materiales, se ha incorporado madera natural en los remates superiores de las ventanas y en la terminación del porche, aportando calidez y reforzando la integración de la vivienda en su entorno.
Estas condiciones definen el carácter final de la vivienda y han sido determinantes desde la fase inicial del proyecto.
La vivienda presenta una fachada en tono ocre, color exigido en este ámbito de la sierra, que refuerza su integración con el entorno natural. Lejos de ser una limitación, este acabado aporta personalidad y coherencia paisajística.
La cubierta inclinada de teja cerámica, además de cumplir con los requisitos constructivos del entorno, mejora el comportamiento térmico del conjunto y refuerza la imagen tradicional del chalet. Todo ello se completa con detalles en piedra natural en el porche, que actúan como elemento de transición entre la vivienda y el exterior.
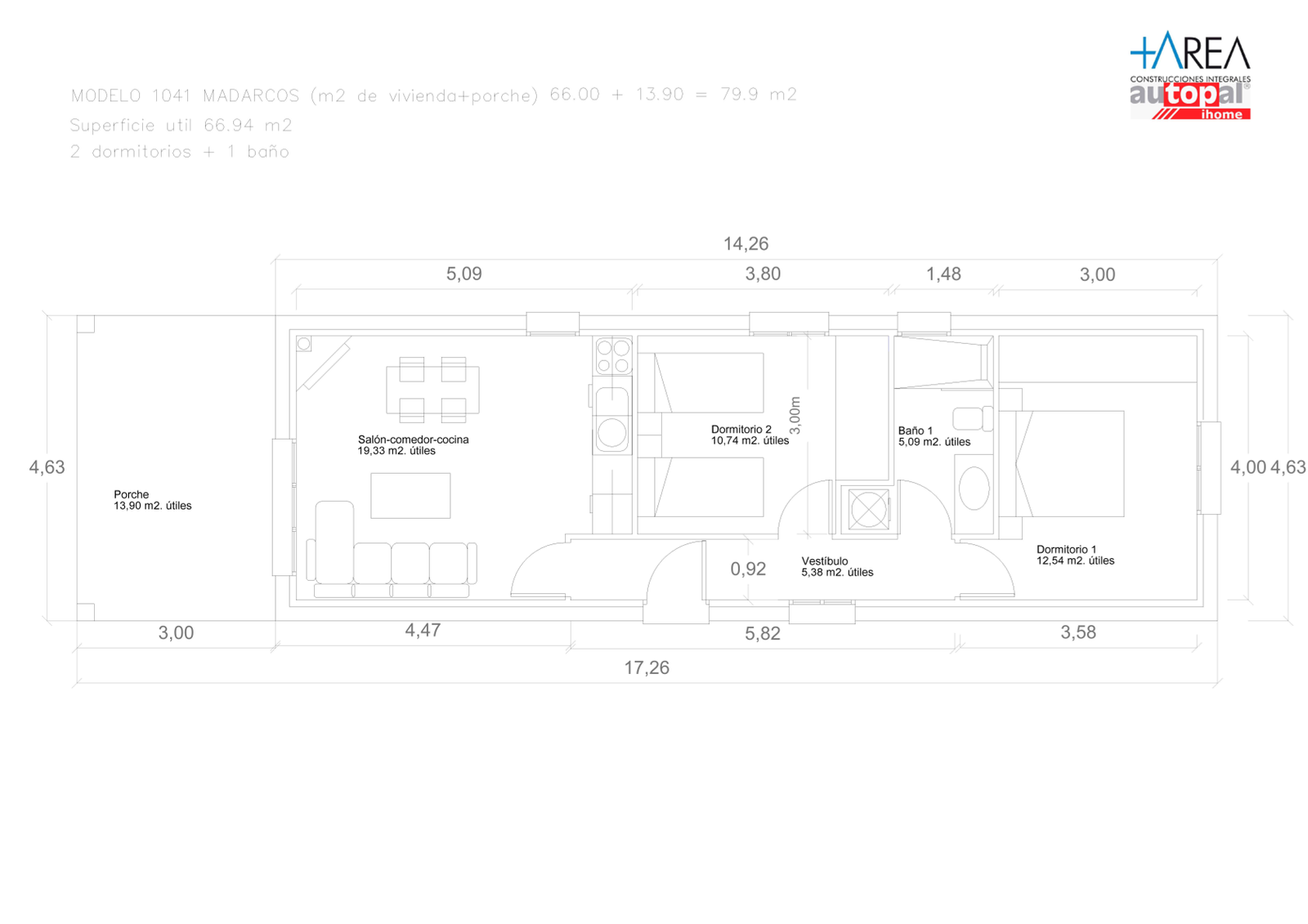
La vivienda se desarrolla en una sola planta, con una distribución clara y bien organizada. El acceso se realiza por un lateral de la vivienda, a la altura del centro de la misma.
En en exterior encontramos un porche cubierto, que protege la zona exterior de la vivienda y genera un espacio intermedio muy funcional.
En el interior encontramos:
Un salón–comedor con cocina integrada, luminoso y pensado para el uso diario.
Dos dormitorios bien proporcionados.
Un baño completo y un vestíbulo que ordena las circulaciones y aporta privacidad.
Una distribución compacta, sin espacios innecesarios, pensada para una forma de vida cómoda y eficiente.
La viabilidad de este proyecto ha sido posible gracias a nuestro sistema AUTOPAL intelligent home, ingeniería propia especializada en soluciones modulares de hormigón.
Este sistema ha permitido:
Adaptar la construcción modular a cubiertas inclinadas tradicionales.
Resolver técnicamente los condicionantes propios de una zona protegida.
Mantener un alto nivel de control, precisión y calidad en todo el proceso.
El sistema AUTOPAL demuestra que la construcción modular no está reñida con la arquitectura tradicional ni con los entornos más exigentes desde el punto de vista técnico.
La vivienda incorpora instalación de placas solares, mejorando su eficiencia energética y reduciendo el consumo eléctrico.
Esta solución, unida al alto aislamiento térmico (Espesor de aislamientos: 220mm en paredes, 120mm en suelo y 280mm en cubierta) y a la cubierta inclinada tradicional, da como resultado una casa preparada para un uso eficiente y sostenible a largo plazo.
Este chalet es un ejemplo claro de que es posible construir viviendas modulares en la Sierra de Madrid, incluso en zonas protegidas, siempre que el proyecto esté respaldado por una ingeniería sólida y un sistema constructivo bien definido.
Una vivienda que cumple con todos los requisitos técnicos del entorno, se integra en el paisaje y mantiene las ventajas de la construcción modular: alto aislamiento térmico, control, calidad y fiabilidad.
Rellena el formulario y nos pondremos en contacto contigo para ayudarte a hacerlo realidad.

Casa modular en la sierra de Madrid Modelo Madarcos Chalet independiente en la Sierra de Madrid Este proyecto se sitúa en un entorno especialmente sensible:

Casa modular en el sur de Madrid Modelo Machu Pichu Chalet independiente ¿Te imaginas vivir en una casa como esta, en Madrid? Una vivienda modular
Nos pondremos en contacto con usted via e-mail con el correo que nos ha facilitado para entregarle su usuario y contraseña.